INTERIOR 05_ART HUB

ArtHub_12 2000x1414
ArtHub_09 2000x1414
ArtHub_14 2000x1414
ArtHub_04 1414x2000
ArtHub_08 1414x2000
ArtHub_36_FotoHampusBerndtson_low
ArtHub_17 1414x2000
ArtHub_16 2000x1414
ArtHub_10 1414x2000
ArtHub_06_FotoHampusBerndtson_low
ArtHub_15 1414x2000
2_
FM LQ Art Hub Kunstens og arkitekturens rolle i velfaerdsbye 9
SNY01623 1 scaled
After
X / X
ArtHub_FørOmbygning_03_FotoHampusBerndtson_low
ArtHub_FørOmbygning_06_FotoHampusBerndtson_low
Art Hub_Archival Studies 1 2
Art Hub_Archival Studies 4
IMG_8663
IMG_3022
IMG_8105
IMG_8691
Before
X / X
Project type: 
Culture, Workspace
Client: 
Art Hub
Location: 
Copenhagen
Date: 
2020
Materials: 
Excisting and aluminium tracks
Photography:
Hampus Berndtson
Project team:
Partners, Motong Yang, Nicholas James Love
Collaborators:
Pihlmann Architects

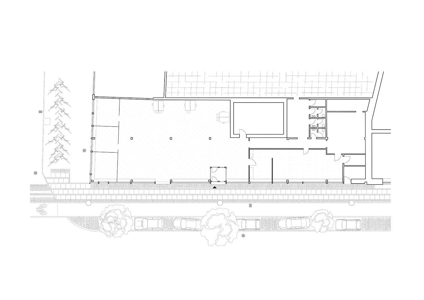
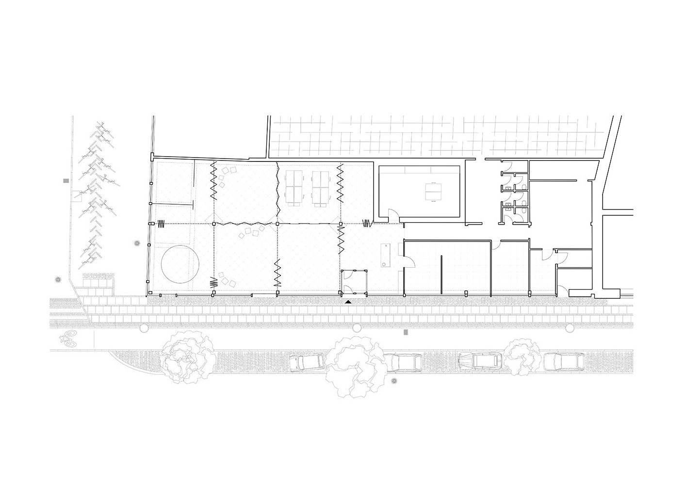
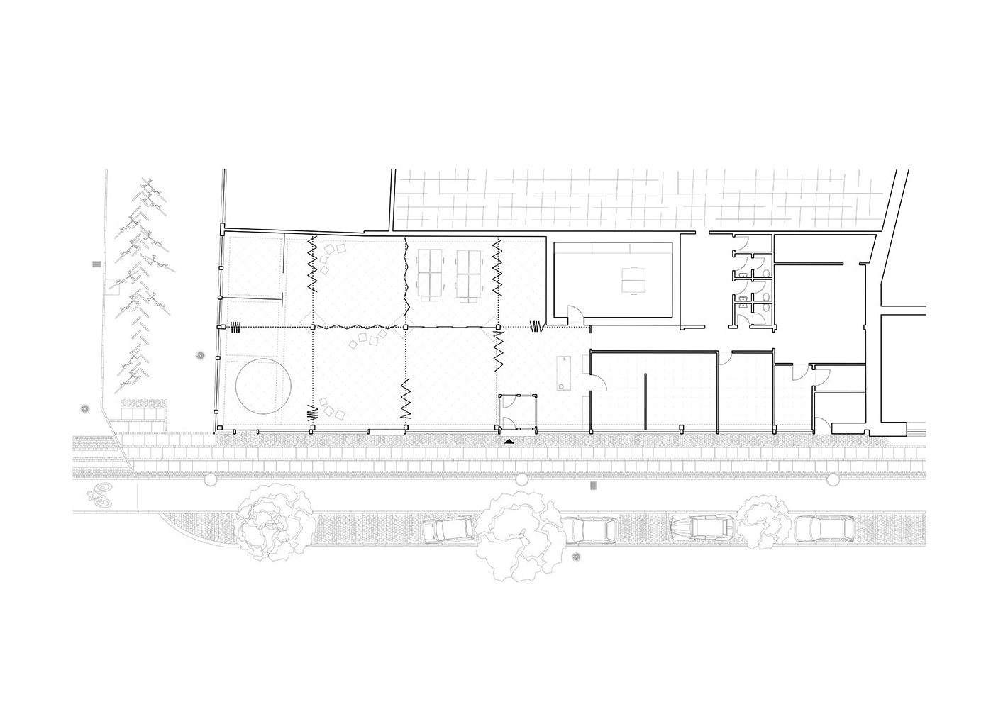
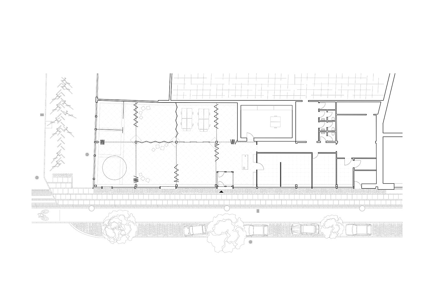
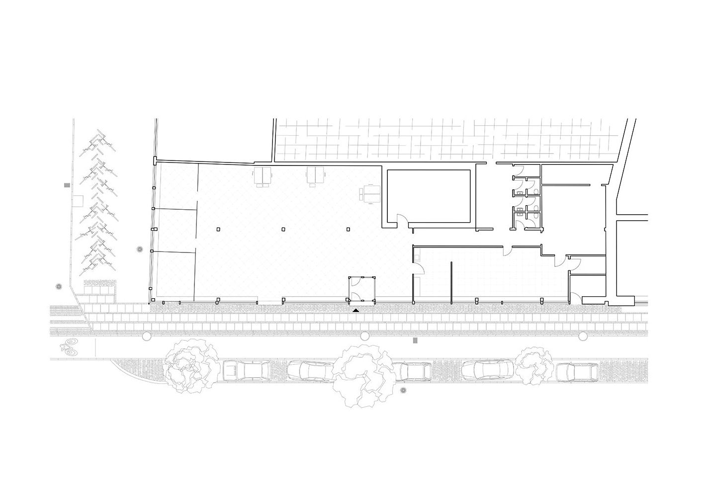
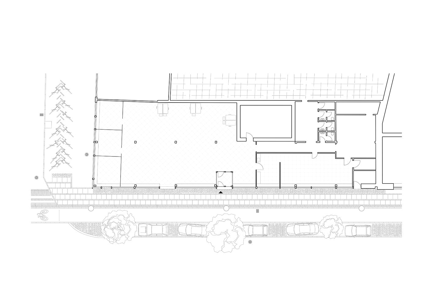
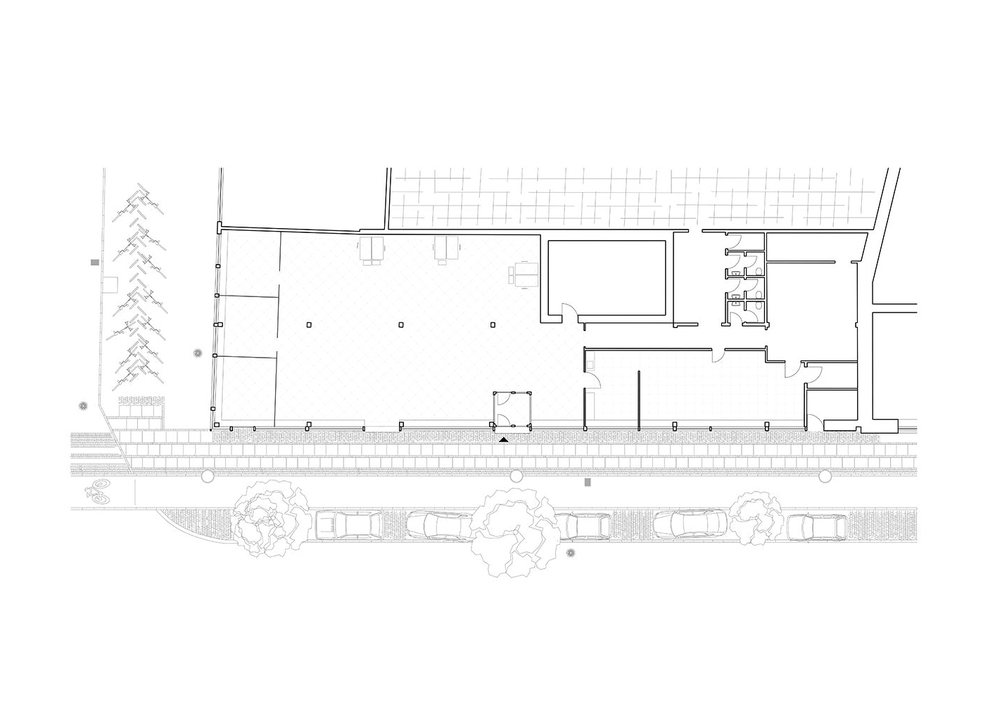
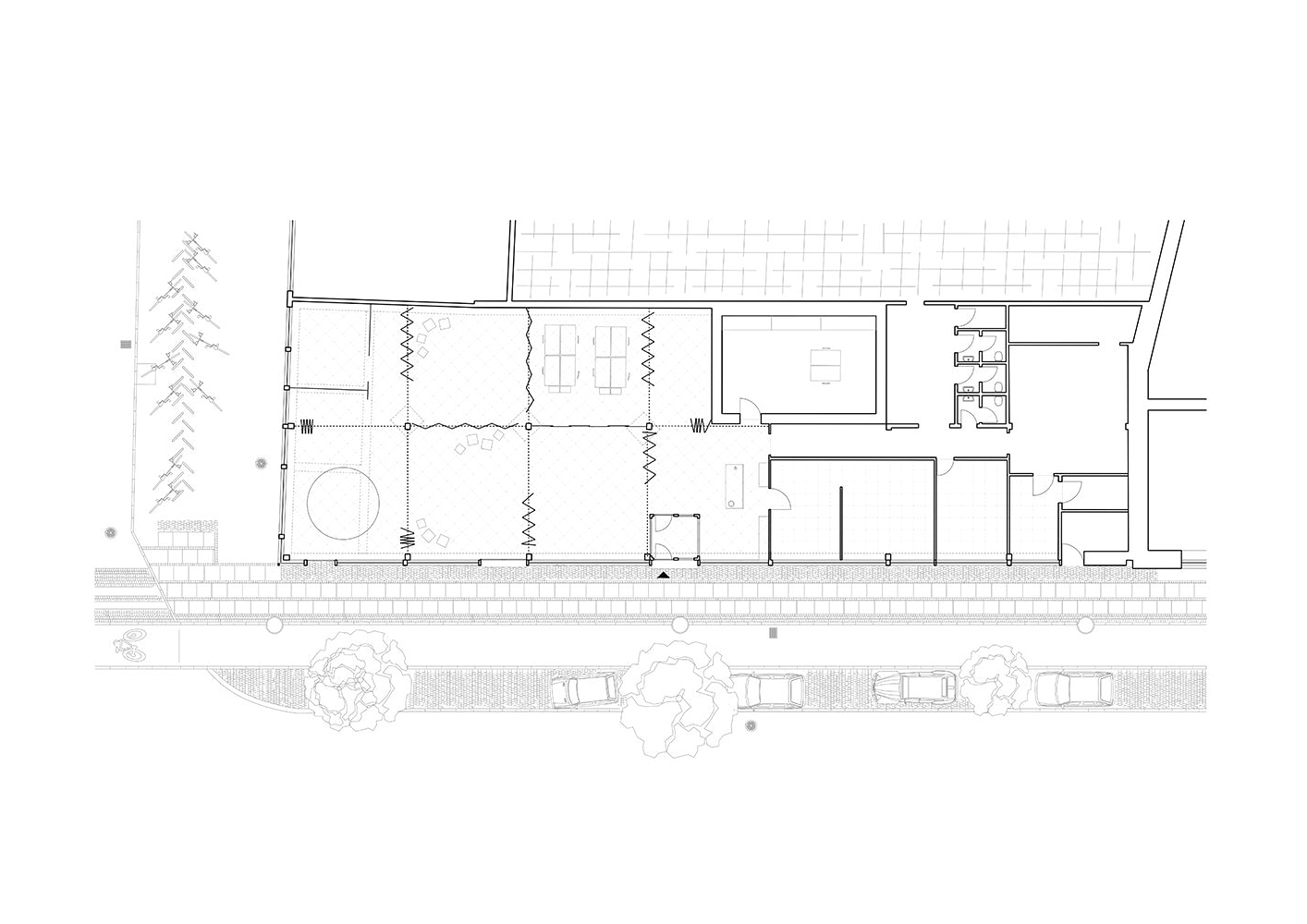
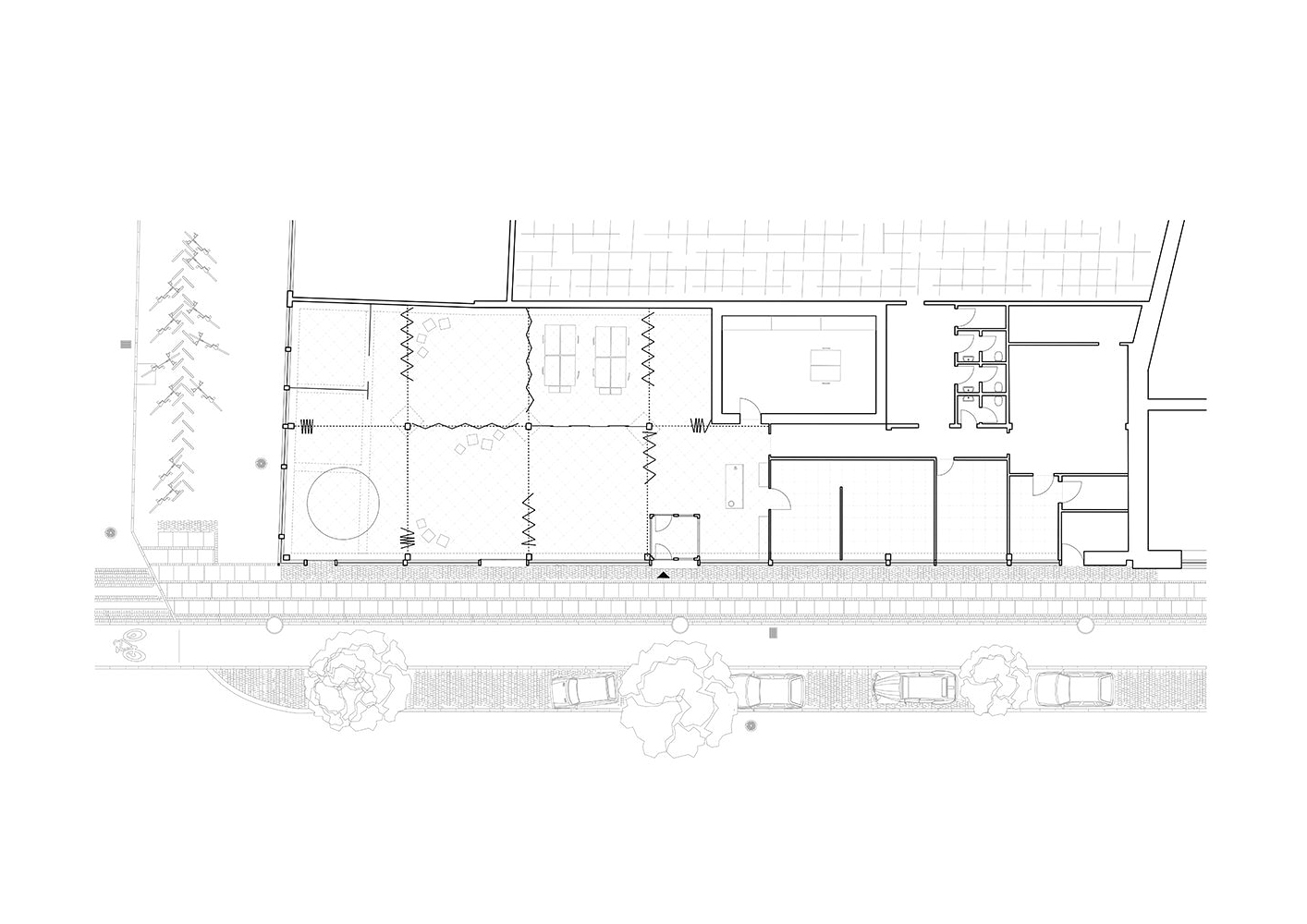
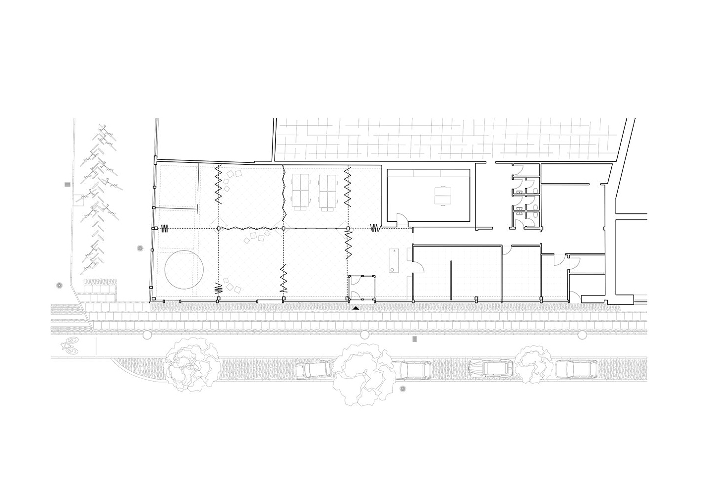
Since 2019, Art Hub Copenhagen has been based in Kødbyen, the Copenhagen Meatpacking District. Within a couple of years, Art Hub will move to Thoravej 29. This temporary perspective is a premise which is turned into the general dogma for our transformation: Every element must be reused. Nothing is disposed but revitalized through the rewriting of function and appearance. The transformation of Art Hub Copenhagen points towards a general path for how recycling can be rethought in architecture. When resources are not consumed, but regenerated into value-creating elements, recycling is no longer a necessary evil, but the very catalyst of form and intention. The original acoustic ceiling panels from the pre-existing Danske Bank office space have been taken down and reused to build the flexible space-dividing walls. The ceiling panels have been connected using simple, reuseable hardware, and are hung from sliding door tracks. The Danske Bank office space had glass walls that were glued to each other and to the floor, walls, and ceiling with silicone glue. This way of building results in an element that is difficult to disassemble and transform at a later stage. We use the existing glass panes to build a dividing wall and a shelf system, in which the glass panes are held together by CNC-milled aluminium brackets and plastic wedge shims. This allows for the glass panes to be easily reused in the future, when the space will be transformed yet again. Collaboration with Pihlmann Architects.

Archival Studies Art Hub Drawing 1
Archival Studies Art Hub Drawing 2
Before / After
X / X

Related projects